Beschrijving
Uniek, 2e Wohnsitz luxe appartementen aanbod ,,hartje'' Ski-Amadee
Altenmarkt / Zauchensee / Flauchau / Ski-Amadee
Bouw gestart ! Nog 3 te koop , Top 2, Top 3 en Top 7 . oplevering april 2027
Geen verhuurplicht , maar u mag wel zelf verhuren als u dat wenst !
Nu te koop mooie en zeer goed gelegen in kleinschalig appartementen Residence ( slechts 8 eenheden) en chalet project in Altenmarkt /Zauchensee Oostenrijk.
Nu snel aanmelden ! Wees er snel bij dit is echt uniek Dit vindt u nergens voor deze m2 prijs in het Salzburgerland ! .
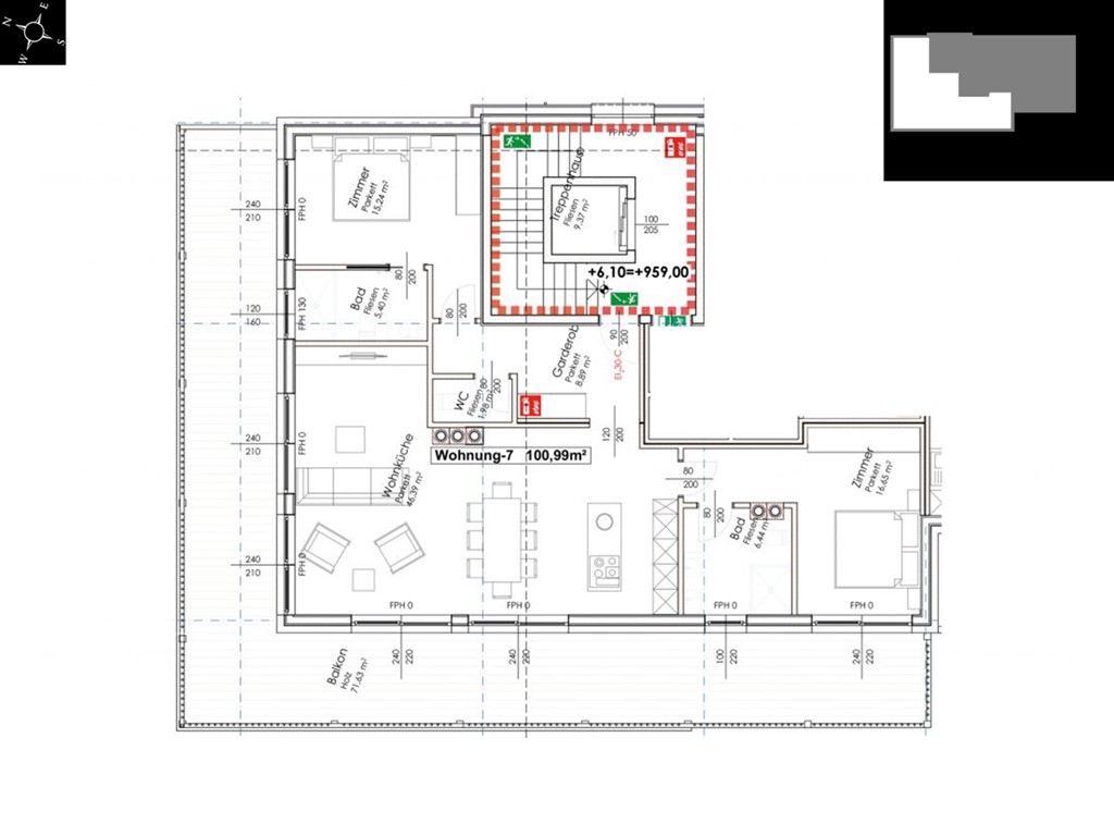
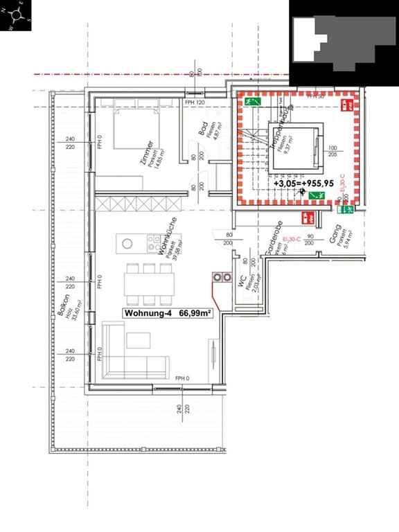
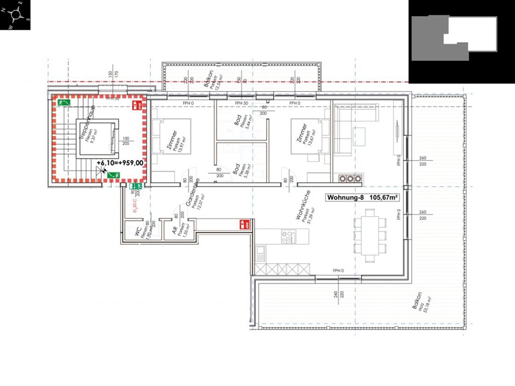
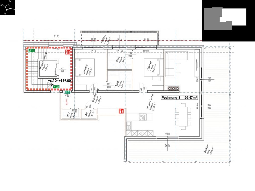
2 en 3 kamer appartementen (resp. 66/100m2 ) en ook twee 3kamer Penthouse appartementen beschikbaar resp. 105m2/top 8. a Euro 1.424.620,- kk. en 101m2/top7 a Euro 1.377.325,- bruto kk.
Geen verhuurplicht (in de appartementen ) dus geheel vrij om te doen en laten wat U wilt
Aanbod:
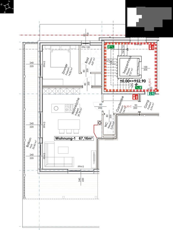
2-kamer app top 1 67m2 terras / tuin Euro 633.323,- kk.
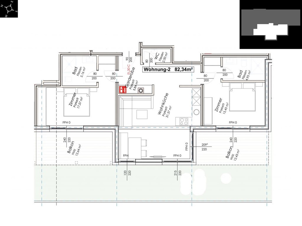
3 kamer app top 2 82m2 terras / tuin Euro 766.249,--kk.
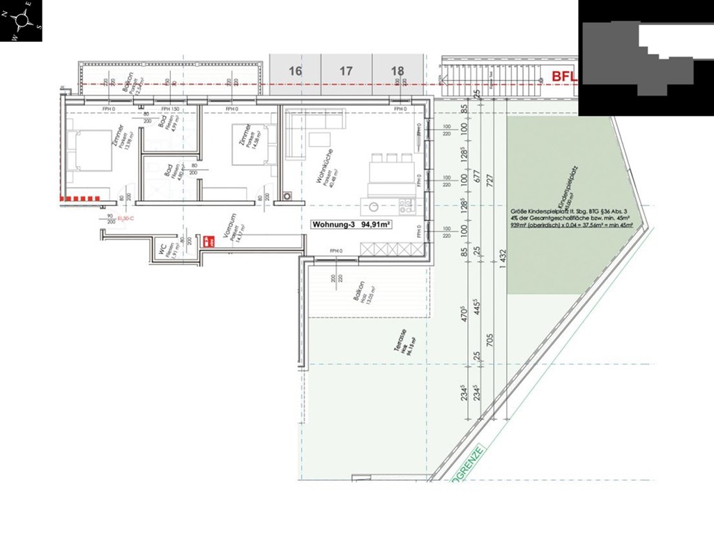
3 kamer app top 3 95m2 terras /tuin Euro 989.670,- kk.
2 kamer app top 4 67m2 Euro - kk.
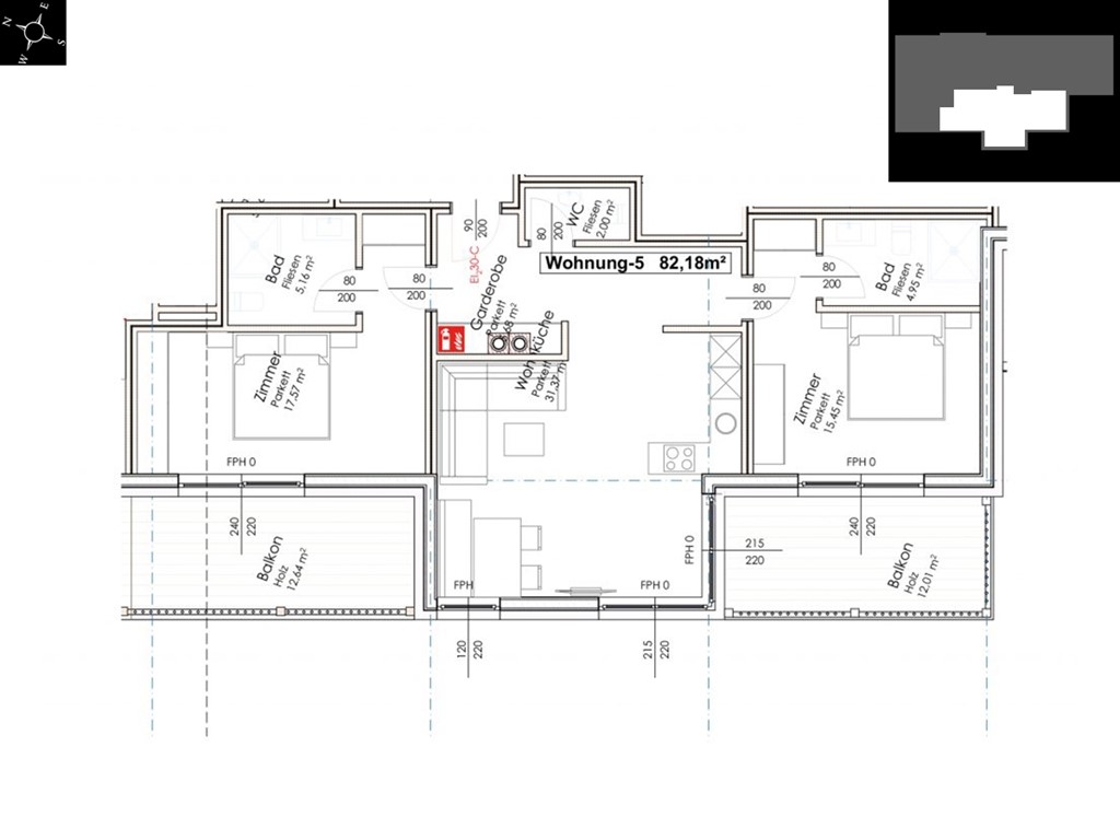
3 kamer app top 5 82m2 Euro - kk.
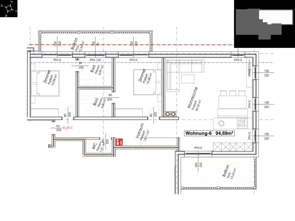
3 kamer app top 6 95m2 Euro verkocht.
3 kamer app top 7 101m2 penthouse Euro 1.377.325,- kk.
3 kamer app top 8 105m2 penthouse Euro - kk.
Alle prijzen bruto incl. sanitair en vloer, tevens kelderberging. Inrichting (ook de keuken) in overleg zelf te bepalen en betalen .
De 2 kamer appartementen met garageplaats en een buitenparkeerplaats a €29.000,- en €10000,-
De 3 kamer appartementen met 2 garageplaatsen a €29.000,-
Net buiten het centrum gelegen bij de lift, richting Zauchensee in een klein rustige residentiel woonwijkje .
Inlichtingen: Alpine Second Homes / De Alpenmakelaar nr 1 - Uw Coach in de Alpen.
Tel: 06 15 344 110 / mail: info@alpinesecondhomes.com
Op sneewzekere hoogte in het ,,Schneeloch`` Altenmarkt -Zauchensee (Ski-Amadee)
Plattegronden
5aace5f5-5dc9-4e69-8651-a18e01768448.jpg
7fe3779f-a064-4da1-9c22-8cd05c2d0fc5.jpg
3417b873-951d-46d5-83a3-2d4482bdf6b4.jpg
83540acd-aee4-425d-96ef-e92aa0fa8844.jpg
aa93c88b-c2d4-4843-9c5f-c96078a21caa.jpg
bb8f3ae4-2441-444d-b4e9-6553404149dc.jpg
f99df06a-b2be-49ee-a794-cd3684075786.jpg
f1206477-f863-47a1-9ceb-f68ad9208096 (1).jpg
f1206477-f863-47a1-9ceb-f68ad9208096.jpg